
前不久,各大院校陆续安排了2019年考研复试,各位考研生们想必都已经知道了自己的复试结果。撇开喜欢的城市、院校科研实力、专业水平等,大家选择目标院校时,还会考虑其他因素吗?之前跟朋友们交流过这个话题,结果发现不管是考大学还是考研究生,大家都会在网络上搜索这么一个问题:XXX大学寝室有独卫吗?我就想要个独卫
现在大学寝室的条件越来越好,大多数学校都能满足学生的基本需求,独卫、热水、空调……不过和家里比起来,这里似乎……依然只是个睡觉的地方。偶尔闪过自己动手改造寝室的念头,也因为各种现实阻碍而作罢。有时候想,如果能按照自己的想法建一栋寝室楼就好了。
如果寝室的书桌是这样可能吗?不可能吗?可能的!计划于下半年投入使用的崭新宿舍楼就可以由你来决定!
![]()
上海建桥学院在建宿舍楼设计图
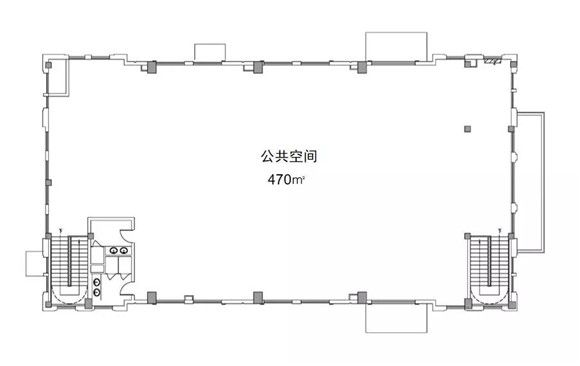
男生宿舍在左,女生宿舍在右,连通两幢宿舍楼的公共空间要怎么玩?
![]()
公共空间外部设计图
![]()
一层平面图
![]()
二层平面图
![]()
![]()
![]()
共享厨房、咖啡书吧、电竞室、健身房……敢想敢做!怎么协调大家的需求?怎么设计这个空间?怎么维持?怎么运营?
为了和同学们讨论这些问题,我们决定举办一场「参与式设计开放日」,一起大开脑洞,为新建宿舍楼添砖加瓦吧!
可持续生活解密
我们为你办了一场露天的展览!「可口可乐」、「好瓶」、「BottleDream」,你想知道这些创变者都做些什么吗?欢迎来到“GREENFUN”,不仅讲述创变者的故事,解密年轻人的可持续观,还会有一个宣传垃圾分类的、展示毕业班设计作品的小活动哦。
![]()
由大鱼营造带来的“建桥创变局”,除了一些有趣的社区营造案例展示,还将用参与式设计的方式,让同学们畅想未来校园可持续生活的多种可能性!你可以尽情吐槽校园中的不合理空间,你可以大胆提出你的需求,你可以结合自己的爱好,脑补出101种校园空间的打开方式!
![]()
分享心情、技能、小故事的“趣享驿站”,用温暖可爱的便签纸与纸胶带,把你想要传达的都写出来吧。
![]()
你有没有放错地方的宝贝?带上它,来“旧物交换”,可以和涂创社的小伙伴们交换他们手绘的T恤和环保袋哦!
![]()
可持续生活体验
我们在南食堂门前的空地上布置了一个“mini放映厅”,播放可持续生活相关的影片。
![]()
校园社区共创桌游
我们的校园可以变得更好吗?如果有一个机会你可以和不同专业的同学,甚至可能和学校老师一起讨论你们在校园生活中面临的困扰,并且通过游戏的方式为校园问题提出解决提案,你想来参加吗?
![]()
你是不是有也有想过这些问题?如何结合学生创新创业,在校园发展学生自主经营的商业和服务?对校园的自习室或研讨室资源,如何创新管理机制,更好地服务学生需求?在校园里可以买菜做饭吗?
……
![]()
现在,我们有一栋全新的宿舍区学生活动中心等待着大家的创新提案!
如果你平时关心校园,对校园生活存在对问题有所洞察,不要犹豫,填写报名表,来报名我们的校园桌游吧!
开放日当天,建桥的学生社团也将展示他们的可持续生活方式。
压花社:在上海建桥学院,四季花朵种类繁多,nova工作室的同学们拾起花瓣,风干防腐,在学习之余交流心得,潜心用花儿树叶描绘自己的心之所向,在学习闲暇之余修身养性,在押花制作期间总结前人之经验,并有所思,在次次押花制作中磨砺自身艺术修养,在创新中一路前行。
![]()
书法社:书法社成立于2015年7月,本社团是以书法艺术为追求的社团。笔墨挥洒韵味,捷思闪烁光泽。上海建桥学院书法社是一个推广书法艺术、弘扬传统文化的交流平台。博观而约取,厚积而薄发,书法社氛围沉静又不失生机,是一个热爱书法艺术的集体。
![]()
涂创社:涂创社成立于2018年9月,本社团为文化娱乐性社团,秉承着嘻哈文化,为热爱涂鸦、崇尚嘻哈文化的年轻人开创一个社交圈,并为嘻哈文化的推广做一系列的涂鸦类活动。本社团有完善的团队支撑,从创作、宣传、活动策划和社团内部管理方面来讲,都能够达到自我完成的要求。
![]()
微家:微家于2015年7月开始筹划,9月正式开始运行。它坐落于我校A区公寓辅助房内,该项目主要围绕爱心捐助,联合收集在校师生捐赠的闲置衣物、书籍等可回收使用的物资,将有实用价值的物资集中整理、清洗,投入使用,让更多真正需要的学子可免费申请物资。
另外,我们还定期还一部分衣物、书籍以爱心包裹的形式,捐赠给学校定点支援希望学校,为贫困的孩子带去一丝温暖。同时定期利用微信平台、展示板将所捐物资的及时出处公开,在获得捐赠对象同意后,公布其名单,积极体现微家“共享、公开、绿色、环保”的理念。
开放日现场会有回收旧衣物的活动哦!
![]()
活动信息
活动时间:2019年4月8日11:30-15:00
活动地点:上海建桥学院南食堂门口
参与方式:于当日前往活动地点即可
校园社区共创桌游报名
我们将根据大家提交的「你最想和大家探讨的校园议题」筛选10名同学参加我们的桌游!在桌游中产生的校园提案将会反馈给建桥校园,同时也会作为新宿舍公共空间的设计任务书的一项重要参考意见。
没准,你还可以看到自己的游戏提案真正落地!
桌游时间:4月8日11:30-15:00
桌游地点:上海建桥学院南食堂门口咖啡厅
![]()
桌游参与者仅限于建桥学生。
报名成功的同学会收到“校园社区共创桌游”的具体时间和地点。
没有报名成功的同学也不用灰心,我们会把你拉到建桥校园社区共创群,在群里我们会不定期同步新宿舍楼学生活动中心项目的最新情况,在里面你可以找到同样关心校园的小伙伴,欢迎你在群里大胆说出你的无限畅想。
![]()
青未来作为上海市教委支持的青少年生态文明教育品牌,今年将通过青未来社区推动可持续“绿色学校”的建设。我们想与大家一起,共同创造属于我们的校园社区。
青未来社区是植根校园社区生活的绿色学校创变实践区。以促进校园共享空间微更新与营造校园青年社区的方式推动绿色学校发展,积极聚集和引领青年学生,共同探讨如何用创新创变的方式和更具社会责任感的态度解决校园环境与生活问题,让校园生活更人性、更美好,打造生态美丽校园、提升校园品质。
东方网教育频道 陈乐
